网站首页  |  联系我们  |  下载中心 
网站首页 关于我们 新闻中心 产品展示 案例分享 市场活动 下载中心 客户留言 人才招聘 联系我们
栏目导航
新功能模块FMB FMS
电动执行器Rexroth电缸
IMS集成式测量系统
Rexroth直线运动系统
力士乐滚珠导轨
力士乐导轨
力士乐滑块
经济型滚珠导轨BSCL
凸轮滚子滚轮导轨
力士乐滚柱导轨
力士乐滚柱滑块
力士乐滚柱重载导轨
经济型滚柱导轨RSFL
力士乐滚珠丝杠
力士乐丝杠
力士乐螺母
丝杠端部组件
Rexroth轴承
eLINE滚珠导套和轴
滚珠导套和轴
力士乐精密钢轴
万向滚珠单元
Rexroth导轨滑块配件
力士乐工业液压
联系我们
地址: 江苏省昆山市城北大道1288号4号楼
电话: 0512-3668 8338
传真: 0512-3668 8339
邮箱: info@debonseiko.cn
网址: http://www.debonseiko.cn
您的当前位置:首页 > 产品信息 > 力士乐滑块 > 微型滚珠滑块BLS R0441
产品名称:微型滚珠滑块BLS R0441
产品详细说明

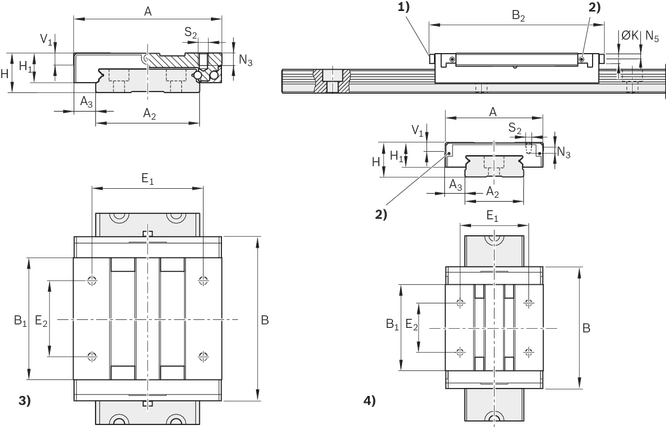
力士乐微型滚珠滑块,宽,长,BLS R0441 REXROTH滚珠导轨

特征:

  • 精度等级 P、H 和 N
  • 具有再润滑孔
  • 由于滚珠返回和导向在设计上都进行了优化,所以运行流畅、无噪音
  • 滚珠固定方式便于更换
  • 产品尺寸数据:

    1) 喇叭形润滑嘴
    2) 4 个润滑孔
    3) 规格 15
    4) 规格 9/M3、12

    特性:

  • 由于使用了最大滚珠规格,因此在所有载荷方向上均具有高载荷,包括所有轴周围的转矩。
  • 规格 15 及以上在端面上配有润滑嘴,并在侧面配有再润滑口
  • 滑块交付时提供安装帮助。
  • 摩擦力低
  • 滑块的所有钢制部件均由接近 ISO 683-17 / EN 10088 标准的防锈耐酸材料制成
  •  

    友情链接:
    地址:江苏省昆山市城北大道1288号4号楼  电话:0512-3668 8338    
    CopyRight © 2026 昆山德邦精工自动化科技有限公司  版权所有  苏ICP备13041348号-6后台管理