网站首页  |  联系我们  |  下载中心 
网站首页 关于我们 新闻中心 产品展示 案例分享 市场活动 下载中心 客户留言 人才招聘 联系我们
栏目导航
新功能模块FMB FMS
电动执行器Rexroth电缸
IMS集成式测量系统
Rexroth直线运动系统
力士乐滚珠导轨
力士乐导轨
力士乐滑块
经济型滚珠导轨BSCL
凸轮滚子滚轮导轨
力士乐滚柱导轨
力士乐滚柱滑块
力士乐滚柱重载导轨
经济型滚柱导轨RSFL
力士乐滚珠丝杠
力士乐丝杠
力士乐螺母
丝杠端部组件
Rexroth轴承
eLINE滚珠导套和轴
滚珠导套和轴
力士乐精密钢轴
万向滚珠单元
Rexroth导轨滑块配件
力士乐工业液压
联系我们
地址: 江苏省昆山市城北大道1288号4号楼
电话: 0512-3668 8338
传真: 0512-3668 8339
邮箱: info@debonseiko.cn
网址: http://www.debonseiko.cn
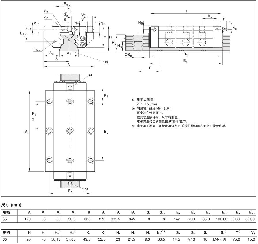
您的当前位置:首页 > 产品信息 > 力士乐滚柱滑块 > 重载滚柱导轨R1854
产品名称:重载滚柱导轨R1854
产品详细说明

Rexroth重载滚柱导轨R1854|力士乐重载滚柱线轨

动态特性
速度:v max = 3 m/s
加速度:a max  = 150 m/s 2
推荐的预紧和精度等级组合
▶ 预紧 C2 时:H 和 P(优选)
▶ 预紧 C3 时:P 和 SP

物料号:

技术数据:

1) 额定动载荷和动转矩是按照 DIN ISO 14728-1 以 100 000 m 行程为基准确定的。实际中经常是以 50 000m 行程为基准。比较:根据表格数值 C、M t 和
M L 乘以 1.23。
产品尺寸数据:

1) 尺寸 H 2  带防护带
2) 尺寸 H 2 不带防护带
3) 连接件的螺纹
4) 尺寸 T = 滚柱导轨的间距

Rexroth重载滚柱导轨R1854|力士乐重载滚柱线轨特征:

载荷容量极高的重型机器结构的重型滚珠滑块
在所有载荷方向上均达到最高刚度
由于滚珠滑块中心额外开了三个安装螺丝孔,提升了抬起和侧向载荷情况下的刚度
扭矩容量高
由于各款式滚珠滑块内的不同款式的滚珠导轨都很均匀,因此,互换性不受限制,并且可以组合任意数量的选件。
滚珠滑块的配件可从上面和下面安装
各侧都配有润滑口,最大程度地方便维护
创新型通道设计,最低润滑量
由于滚珠循环和导向都进行了优化,所以运行顺畅
经优化的入口区几何结构,以及每个轨道内大量的滚珠,最大程度地减少了弹性挠度的变化
铝质或塑料端盖

重型滚珠滑块特别适合对承载能力和刚度要求非常高的重型机器结构。
RSHP 滚珠滑块适合所有典型的应用,以及特殊的安装、环境和运行条件,因此无需其它的特殊设计。


友情链接:
地址:江苏省昆山市城北大道1288号4号楼  电话:0512-3668 8338    
CopyRight © 2026 昆山德邦精工自动化科技有限公司  版权所有  苏ICP备13041348号-6后台管理