重载滑块FNS R1861动态特性
速度:v max = 2 m/s
加速度:a max = 150 m/s 2
推荐的预紧和精度等级组合
▶ 预紧 C2 时:H 和 P(优选)
▶ 预紧 C3 时:P 和 SP
提示
在哑光银镀硬铬 Resist CR 滚柱滑块时,注意尺寸 H 和 A 3 不同的公差(见"精度等级及其公差")。
在镀硬铬滚柱滑块和镀硬铬滚柱导轨组合时,预紧将提高约半个预紧等级。
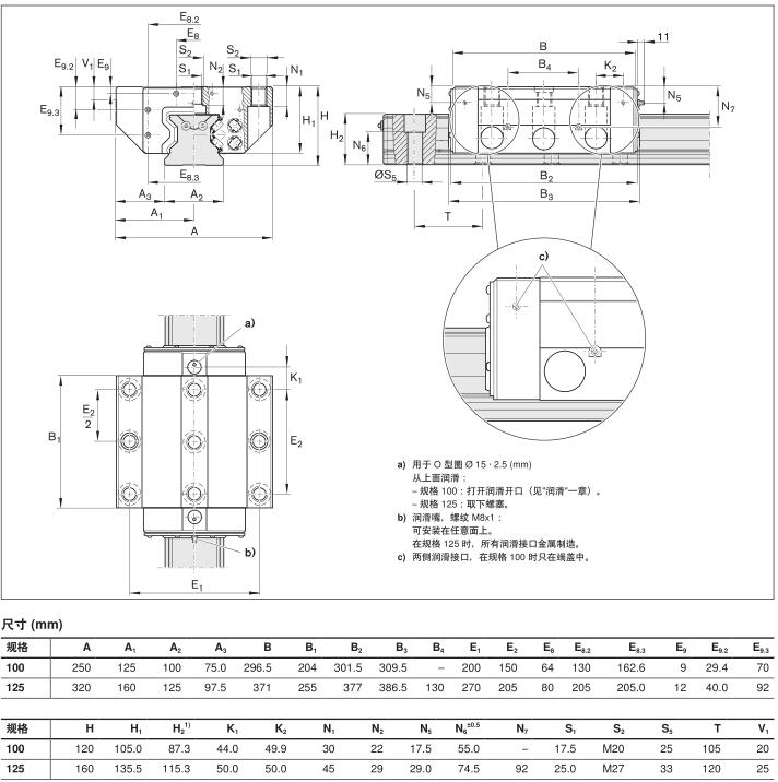
为短行程 (< 2 · B 1 ) 使用附加的润滑接口:规格 125:B 4 和 N 7所有润滑接口带螺纹 M8x1 (在金属规格 125 时)。
钢制重载滚柱滑块的物料号

技术数据:
1) 额定动载荷和动转矩是按照 DIN ISO 14728-1 以 100 000 m 行程为基准确定的。实际中经常是以 50 000m 行程为基准。比较:根据表格数值 C、M t 和
M L 乘以 1.23。
产品尺寸数据:
重载滚柱导轨导向系统杰出的特性
滑块用9个螺栓安装:
-外围6个螺栓,强度等级12.9
-中间3个螺栓,强度等级8.8
-重载滑块适用于要求极高承载能力和应用领域
-在所有载荷方向上都具有极高的刚度
-利用滑块中部的三个孔附加螺栓固定,提高了在上提载荷和侧面载荷作用时的刚度
-高抗转矩载荷能够力
-不同款式的导轨肯有相同的截面形式,使所有滑块都能不受限制地互换和进行任意组合
-可从滑块的上面和下面用螺栓连拉安装元件
其它优点
--各面都有润滑口,保养方便
-新颖的润滑通道设计将润滑剂消耗量降至最低
-耐磨轴承钢制造的滑块在滚道区域淬火和磨削加工(导轨同样也在滚道区域淬火所有面都有磨削加工)
-采用设计的滚柱转向和导向,使运行平稳灵活
-理想的入口几何形状和较多的滚柱数量,使其具有较小的弹性波动
-铝端盖及塑料端盖
-标准的前置密封用于所有滚道的更好密封和保护塑料零售件
选项
-耐腐蚀的Resist CR重载滑块和重载导轨为亚光银色镀硬铬,可以供货精度H(预紧C2和C3)的款式。
力士乐重载滚柱导轨R1861|导轨宽度125mm重载滚柱导轨|高密封性能重载滚柱导轨|力士乐线轨
|